SUITES
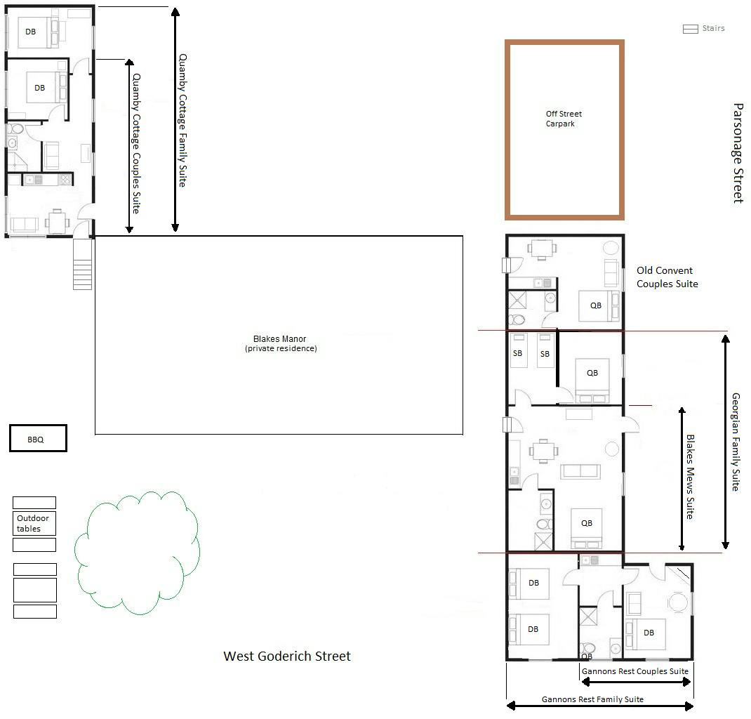
Georgian Family Suite
From the moment you walk through the doorway of the Georgian Family Suite you will be transported back in time to an era of Georgian opulence. This private suite suits lovers of romance and history as well as those who just want to spoil themselves with the best Tassie has to offer. 
The Georgian Family Suite features rich red velvets and the highest quality bedding on a beautiful queen bed made for a "king". A large SECOND bedroom contains another elegant queen size bed plus two comfy single beds. This huge open plan suite is BLAKES MANORS largest and includes cosy and warm "set and forget" heat pumps and a spacious lounge area. You will love your kitchenette for meal preparation and adjoining luxury bathroom. 
Your stay in Georgian Family Suite also includes a special "Blakes Manor Breakfast Hamper" including bread cooked by your hosts. Your hosts also provide warming port and local cheeses upon arrival to enjoy in the privacy of your own suite. Additional information about the suite:
- One queen bed and two single beds (two bedroom configuration)
- Two queen beds and two single beds (three bedroom configuration)
- High quality hotel linen
- Roll-away single bed for a second child, if available.
- Complimentary porta-cot available on request.
- Free Wi-Fi
- Great Location with an easy stroll to main street, supermarket, attractions and shopping.
- Easy access, no stairs. Wheel chair friendly.
- Off street parking.
- Digital TV/DVD plus DVD library.
- Check-in between 3pm and 6pm. Checkout is before 10am.
- Children under 2 FREE.
- Non Smoking Suite.
Your hosts also welcome families with children to our accommodation.
Note: The Georgian Family Suite is the is Blakes Mews Suite with the additional bedrooms opened for our guests.
"A fabulous place! The hosts are wonderfully welcoming! ...food, attention to detail, and use of antiques accent the historical importance of the experience! A top establishment!!"
Charles and Pat - Virginia, USA
********************
"Delightful!! Thank you for your generosity in sharing your beautiful antiques with everyone. I feel very priveleged to be the first wheelchair occupant of this very special suite. Wonderful breakfast! God bless."
Enid and Ian - Bardon, Queensland








